Casa Mutiara Pandan 2

Overview

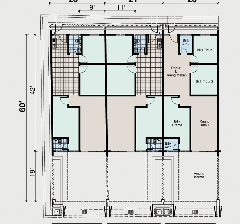
  • Single Storey Terrace
  • Property Type
  • 3
  • Bedrooms
  • 2
  • Bathrooms

Description

Tenure: Malay Rezab

Build Up: 20′ x 42′

Lot Size: 20′ x 66′ – 76′

Unit: 26 units

Details

Updated on March 10, 2026 at 1:50 am
  • Bedrooms 3
  • Bathrooms 2
  • Year Built 2024
  • Property Type Single Storey Terrace
  • Property Status On Going
  • Address: Casa Mutiara Pandan 2
  • City: Kuantan
  • State/county: Pahang
  • Country: Malaysia

Mortgage Calculator

Floor Plans

What's Nearby?

Please supply your API key Click Here

Compare listings

Compare