Taman Pandan Grande 2

Overview

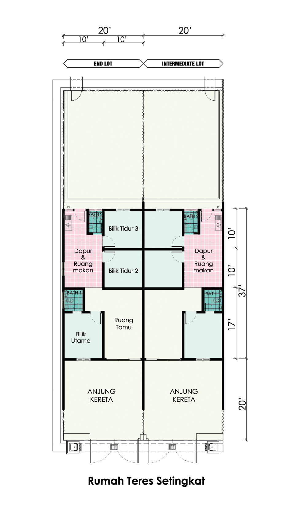
  • Single Storey Terrace
  • Property Type
  • 3
  • Bedrooms
  • 2
  • Bathrooms

Description

Tenure: Freehold

Build Up: 20′ x 37′

Lot Size: 20′ x 87′

Unit: 25 units

Details

Updated on November 5, 2025 at 8:22 am
  • Bedrooms 3
  • Bathrooms 2
  • Year Built 2024
  • Property Type Single Storey Terrace
  • Property Status Completed
  • Address: Jalan Lapangan Terbang
  • City: Kuantan
  • State/county: Pahang
  • Zip/Postal Code: 25150
  • Country: Malaysia

Mortgage Calculator

What's Nearby?

Please supply your API key Click Here

Compare listings

Compare