Taman D’pinggir Kempadang Soi 3

Overview

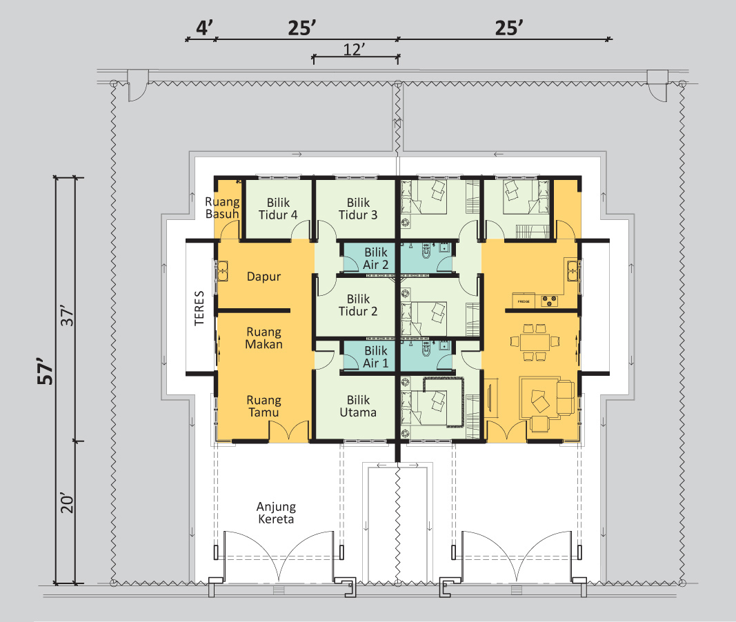
  • Semi-D
  • Property Type
  • 4
  • Bedrooms
  • 2
  • Bathrooms

Description

Tenure: Freehold

Build Up: 25′ x 37′

Lot Size: 40′ x 70′

Unit: 12 units

Details

Updated on November 5, 2025 at 7:42 am
  • Bedrooms 4
  • Bathrooms 2
  • Year Built 2024
  • Property Type Semi-D
  • Property Status Completed
  • Address: Jalan Kempadang Soi
  • City: Kuantan
  • State/county: Pahang
  • Country: Malaysia

Mortgage Calculator

Floor Plans

What's Nearby?

Please supply your API key Click Here

Compare listings

Compare