Prima Gambang Pahang (Fasa 2)
Overview
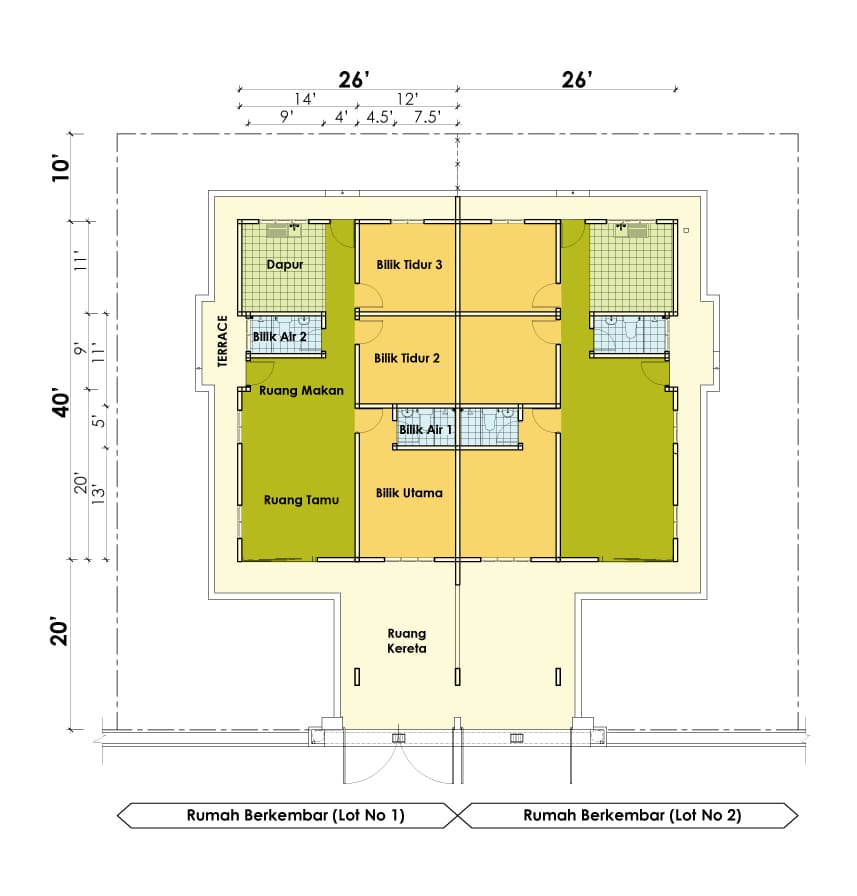
- Semi-D
- 3
- 2
Description
Lot size: 40′ x 70′
Build Up: 1000 kp
Unit: 302
NO.LESEN PEMAJU : 9665-17/10-2018/0801(L) , TEMPOH SAH: 16/10/2016-15/10/2018 ,
NO.PERMIT IKLAN: 9665-17/10-2018/0801 (P), TEMPOH SAH : 16/10/2016-15/10/2018,
PIHAK BERKUASA YANG MELULUSKAN : Majlis Perbandaran Kuantan MPK,
NO. KELULUSAN PELAN BANGUNAN : Bil(14)dlm.MPK/R/B:PB/11/2016-B ,
TARIKH DIJANGKA SIAP : JAN 2019, JUMLAH UNIT : 302 Unit, BEBANAN TANAH : Tiada,
PEGANGAN TANAH : Bebas, Hakmilik tanah pajakan 99 tahun (Tarikh Tamat 13/7/2115),
SEKATAN KEPENTINGAN: Tanah ini tidak boleh dipindahmilik, dipajak digadai melainkan mendapat kebenaran
bertulis drpd Pihak Berkuasa Negeri , HARGA MINIMUM & MAKSIMUM : RM150,000 (min) – RM188,500 (max)
Details
Updated on November 5, 2025 at 8:21 am-
Bedrooms 3
-
Bathrooms 2
-
Year Built 2019
-
Property Type Semi-D
-
Property Status Completed
Address
Open on Google Maps-
Address: Bandar Gambang
-
City: Kuantan
-
State/county: Pahang
-
Country: Malaysia
Mortgage Calculator
-
Down Payment
-
Loan Amount
-
Monthly Mortgage Payment
-
Property Tax
-
Home Insurance
-
PMI
-
Monthly HOA Fees


