Taman Southwood 2
Overview
- Semi-D
- 4
- 2
Description
Tenure: Freehold
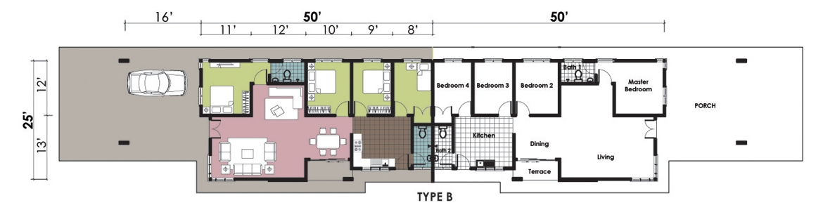
Room: 4 Rooms 2 Baths
Lot size: 42′ x 73′-90′ (Type A) / 47′ – 49′ x 70′ (Type B)
Build Up: 30′ x 40′ ( Type A) / 25′ x 50′ (Type B)
Unit: 28
No.Lesen Pemaju: 9665-14/03-2017/0207(L) , Tempoh Sah: 14/3/2015-13/03/2017, No. Permit Iklan: 9665-14/03-2017/0207 (P), Tempoh Sah: 14/3/2015-13/03/2017, Pihak berkuasa yang meluluskan : Majlis perbandaran Kuantan (MPK), No Kelulusan Pelan Bangunan: Bil(12)dlm.MPK/R/B:PB/117/2012-I, Tarikh Dijangka Siap: July 2017, Jumlah Unit: 28 unit, Pegangan Tanah: Bebas, Bebanan Tanah: Tiada, Sekatan Kepentingan: Tiada, Harga Minimum & Maksimum: RM 350,000 (min) – RM 440,000 (max)
Details
Updated on November 5, 2025 at 8:22 am-
Bedrooms 4
-
Bathrooms 2
-
Year Built 2017
-
Property Type Semi-D
-
Property Status Completed
Address
Open on Google Maps-
Address: Sungai Soi, Kuantan
-
City: Kuantan
-
State/county: Pahang
-
Country: Malaysia
Mortgage Calculator
-
Down Payment
-
Loan Amount
-
Monthly Mortgage Payment
-
Property Tax
-
Home Insurance
-
PMI
-
Monthly HOA Fees
